REVIT DREAM HOME

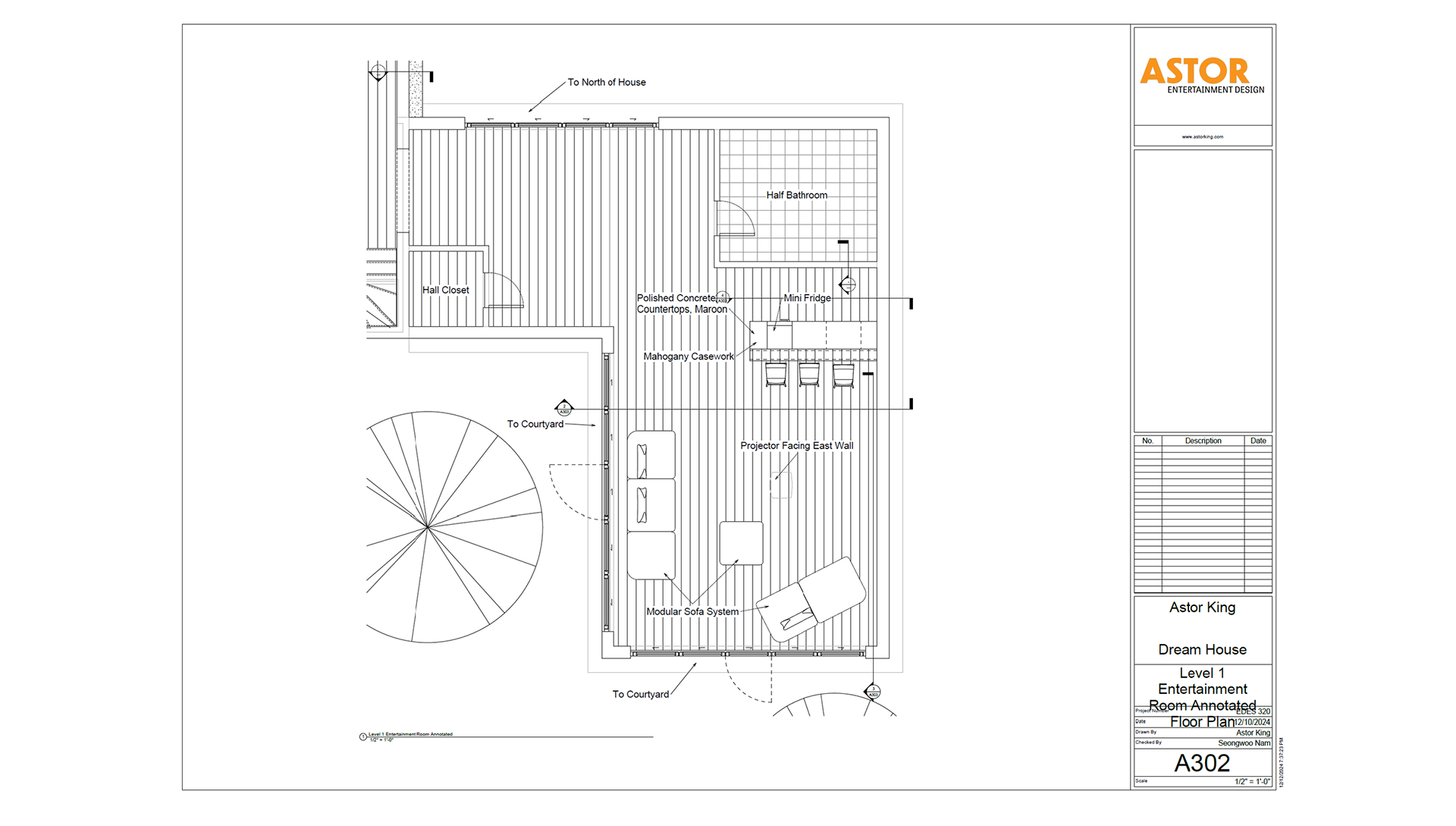
My dream home is a refreshing retreat built around a personal sanctuary. The 2 bedroom, 1.5 bathroom plan features biophillic materials, engulfing landscape, and a courtyard. A small detached studio sits in the middle of the courtyard, fit with sliding doors, a half bathroom, and plenty of space to work.